Umlegung

Grundstücke in Form gebracht

Zersplitterter Grundbesitz oder ungünstige Grundstücksformen behindern oft eine geplante Baumaßnahme. Um diese Hindernisse zu beseitigen und Bauland schneller bereitstellen zu können, führen Kommunen Umlegungsverfahren durch. Diese können auf das zuständige Amt für Digitalisierung, Breitband und Vermessung übertragen werden.
Mit der Baulandumlegung entstehen Grundstücke, die nach Lage, Form und Größe für die bauliche und sonstige Nutzung zweckmäßig gestaltet sind. Dies betrifft sowohl Baugrundstücke für Wohn- und Gewerbenutzung als auch die erforderlichen Verkehrs- und Grünflächen.

  • modernes Instrument der Bodenordnung
  • flexibles und wirtschaftliches Verfahren zur Baulandbereitstellung
  • schnelle und kostengünstige Realisierung der Bauleitplanung
  • Unterstützung und Beratung für die Gemeinden
  • gesetzlich geregeltes Grundstückstauschverfahren mit Eigentumsgarantie

Baulandumlegung nach den §§ 45 – 79 Baugesetzbuch (BauGB)
Wird eine Baulandumlegung von der Gemeinde angeordnet, so kann sie einen Umlegungsausschuss bilden, der die Umlegung durchführt. Sie kann die Befugnis zur Durchführung der Umlegung auch auf das zuständige Amt für Digitalisierung, Breitband und Vermessung übertragen.

Vereinfachte Umlegung nach §§ 80 – 84 Baugesetzbuch (BauGB)
Mit der vereinfachten Umlegung können im bebauten Bereich Grundstücke untereinander getauscht oder einseitig zugeteilt werden, wenn sie unmittelbar aneinander angrenzen oder in enger Nachbarschaft liegen. Sie dürfen nicht selbstständig bebaubar sein.

Vereinfachte Umlegungen werden häufig von den Kommunen, seltener von den Eigentümern veranlasst.

Vom Bebauungsplan zur Umlegungskarte

Wichtige Schritte einer Umlegung

Bebauungsplan

Um Gebiete zu erschließen oder neu zu gestalten, können bebaute und unbebaute Grundstücke durch Umlegung neu geordnet werden. Diese kann innerhalb eines Bebauungsplans oder eines im Zusammenhang bebauten Ortsteils durchgeführt werden.

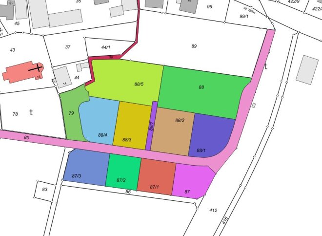
Bestandskarte

Die Bestandskarte weist die bisherige Lage und Form der Grundstücke sowie die Gebäude des Umlegungsgebiets aus und bezeichnet die Eigentümer.

Umlegungskarte

Die Umlegungskarte zeigt den zukünftigen Zustand des Umlegungsgebiets. Es sind insbesondere die neuen Grundstücksgrenzen und -bezeichnungen eingetragen.

Nützliche Informationen zur Umlegung



Datenbank BAYERN.RECHT (externer Link, öffnet in neuem Tab)

Die Ämter für Digitalisierung, Breitband und Vermessung erheben für die Baulandumlegung und die vereinfachte Umlegung Gebühren, die sich nach der Verordnung über die Benutzungsgebühren der unteren Vermessungsbehörden (GebOVerm) richten. Bei Umlegungsverfahren trägt die Kommune die Kosten.
Die Kosten für die notarielle Beurkundung und den Grundbucheintrag entfallen.